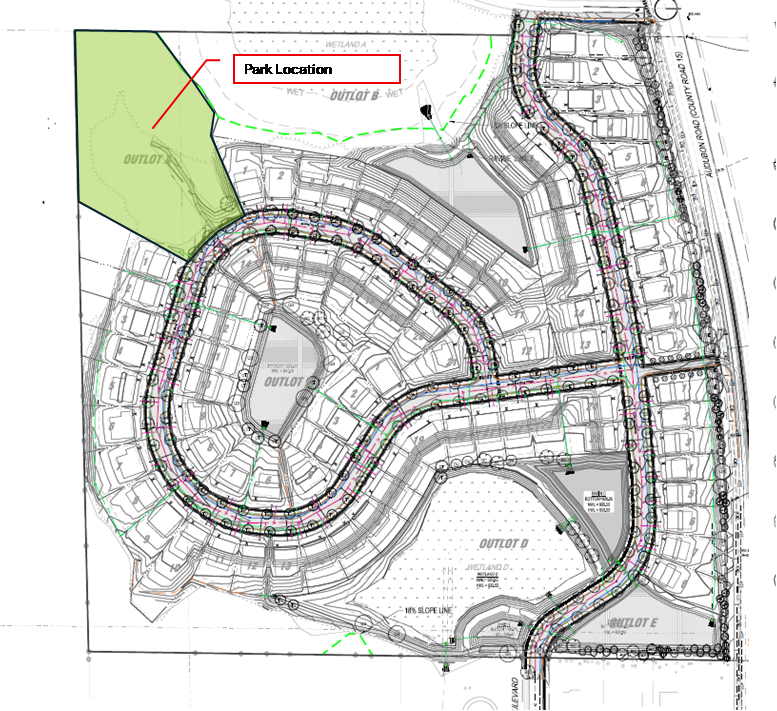
In 2022, Chaska’s City Council approved the Reserve at Autumn Woods neighborhood, which includes 86 new homes and a 3-acre public park. City staff are now working on the park design based on resident feedback gathered in 2025.
Draft plans are now expected to be available for public review and comment in late March.
In September of 2025, the city gathered survey responses from 117 residents to help shape the vision for the park and identify priorities for future amenities. An overview of the results showed:
Other ideas for the park included: open/greenspaces, pickleball courts and basketball courts.
You can view the survey responses here.